🏡 SHITET APARTAMENT 2+1+2– PASKUQAN
💶 1,200€ m²
💳 Mundësi blerjeje me kredi bankare
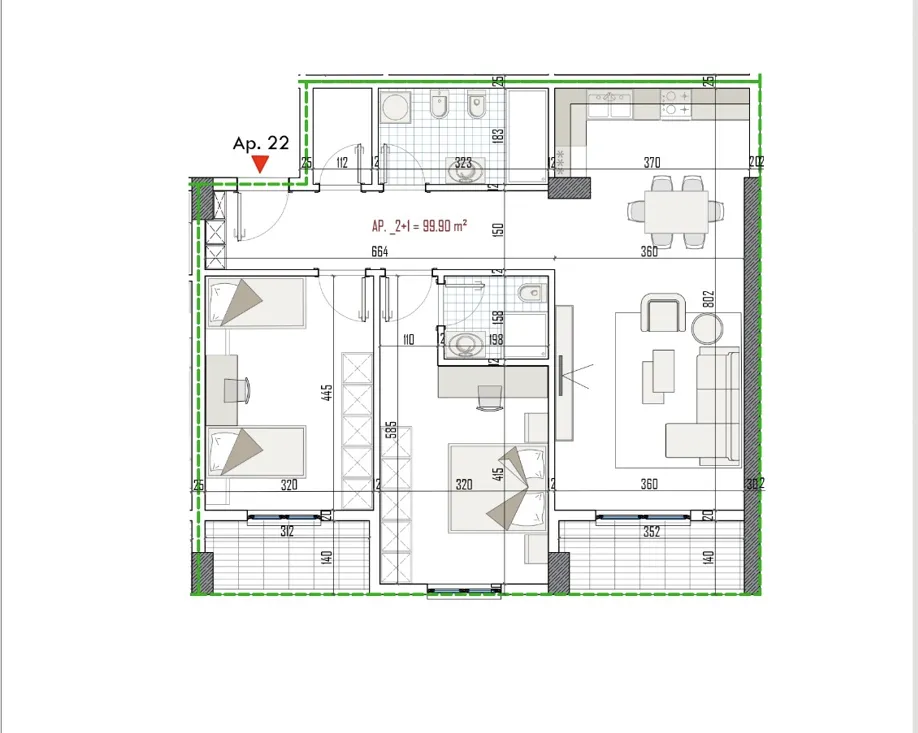
Në një nga zonat më të kërkuara dhe në zhvillim të vazhdueshëm të Paskuqanit, , ofrohet për shitje një apartament 2+1+2, me planimetri shumë funksionale dhe orientim optimal.
🔹 Cilësi & Detaje që bëjnë diferencën:
✔️ Fasadë termike terrakote
✔️ Vetrata termike & akustike
✔️ Izolim maksimal kundër zhurmave (polisterol midis mureve dhe apartamenteve)
✔️ Instalime multistrade dhe tubacione plastike cilësore
✔️ Ambient i qetë dhe i sigurt për jetesë familjare
✨ Avantazhi kryesor:
Apartamenti ofron mundësi financimi me kredi bankare, edhe pse objekti është në ndërtim, si dhe opsion pagese me këste, duke e bërë këtë pronë një zgjedhje ideale si për banim ashtu edhe për investim afatgjatë.
📞 Për më shumë informacion ose për të organizuar një vizitë në pronë, na kontaktoni.
Një mundësi që nuk duhet humbur! 🔑🏠
Statistika
Data e publikimit: 06/02/2026Vizita të pronës: 181
A mund ta blini këtë pronë?
Përdorni kalkulatorin tonë të kredisë për të zbuluar buxhetin tuaj duke përfshirë sa kredi mund të merrni dhe sa duhet të kurseni