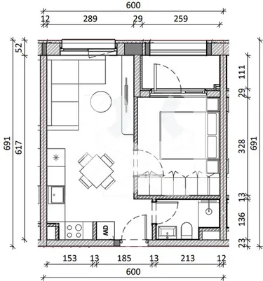
Rezidenca KADIU Ndodhet ne nje nder zonat me te qeta te Tiranes dhe me nje lokacion shume te mire. Sip 47 m2 Cmimi 81000 euro Ambiente te gjelberuara Dritare me alumin termik Ashensori Dere e blinduar Administrim i rregullt dhe lagje shume e qete. Organizimi: Korridor Shpërndarës Sallon Ndënjie + Ambient Gatimi 1 Dhome Gjumi 1 Tualet Dyshemeja parket Dritaret dopjo xham Dera Blind Ne rast se deshironi te shikoni pronen, atehere ne si zyre ndermjetesimi u kerkojme nje plotesim formulari qe nenkupton qe kjo prone eshte vizituar nga ju duke e firmosur ne momentin e shoqerimit. Per me shume informacion me kontaktoni 068 6641933.
Veçori te pronës
Internet
Ngrohje qendrore
Hapsire parkimi
Ballkon
Statistika
Data e publikimit: 04/11/2025Vizita të pronës: 193Çmimi për m2: €1,723.40
A mund ta blini këtë pronë?
Përdorni kalkulatorin tonë të kredisë për të zbuluar buxhetin tuaj duke përfshirë sa kredi mund të merrni dhe sa duhet të kurseni