Shitet Shtëpi Private 1-Katëshe – Draç, Durrës
Ofrohet për shitje një shtëpi private moderne 1-katëshe në zonën e Draçit, Durrës. Prona ka tipologji 4+2 dhe është projektuar për të ofruar komoditet maksimal dhe standarde të larta jetese, e përshtatshme si për banim familjar ashtu edhe si një investim afatgjatë në një zonë bregdetare në zhvillim.
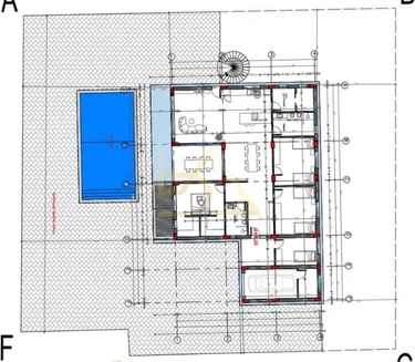
Shtëpia ka sipërfaqe ndërtimi prej 241 m² dhe një sipërfaqe totale prej 1100 m². Hapësirat janë të organizuara në mënyrë funksionale, duke përfshirë një ambient ndenjeje, ambient gatimi, 4 dhoma gjumi dhe 2 banjo. Investimi është i realizuar me detaje të kujdesshme dhe cilësi të lartë ndërtimi, duke përfshirë sistem kondicionimi, garazh për parkim, si dhe një pishinë private që ofron një ambient relaksues dhe luksoz.
Detaje të pronës:
• Sipërfaqe ndërtimi: 241 m²
• Sipërfaqe totale: 1100 m²
• Tipologji: 4+2
• Pishinë
• Investim i detajuar
• Sistem kondicionimi
• Garazh për parkim
• Largësi nga deti: 750 m
• Mundësi pagese me 2 këste
• Dokumentacion i rregullt hipotekor
• Afati i përfundimit: Shtator 2025
• Çmimi: 620,000 €
Kjo pronë është një zgjedhje ideale për familjet që kërkojnë privatësi dhe hapësirë të bollshme, si dhe për investitorët që synojnë një pronë me potencial të lartë në tregun imobiliar bregdetar të Durrësit.
Për më shumë informacion dhe për të organizuar vizita në terren, kontaktoni:
+355 69 428 6063
Britalb Properties
The hunt ends here!
Statistika
Data e publikimit: 09/09/2025Vizita të pronës: 216
A mund ta blini këtë pronë?
Përdorni kalkulatorin tonë të kredisë për të zbuluar buxhetin tuaj duke përfshirë sa kredi mund të merrni dhe sa duhet të kurseni